2. ÖDÜL
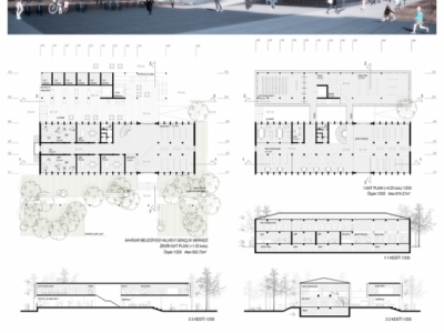
28 Kasım 2018 tarihinde Akhisar Belediyesi tarafından açılıp, projelerin 01 Şubat 2019 tarihine kadar teslim edildiği yarışmada 2. ÖDÜL ile ödüllendirilen projenin detayları. 
										
											Ekip
Sıddık GÜVENDİ - (Mimar K.T.Ü.) Ekip Temsilcisi
Oya ESKİN GÜVENDİ- (Mimar K.T.Ü)
Barış DEMİR - (Mimar Esk. Osmangazi Ü.)
Mesut YEŞİLTEPE - (Şehir Plancısı O.D.T.Ü.)
Eda EKİM YILMAZ - (Peyzaj Mimarı İ.T.Ü.)
Yardımcılar
Ebru Elif AYDIN - (Mimar/ İnş. Müh. İ.T.Ü.), Egehan SAVGI - (Mimar Y.T.Ü.), Beyza PORTAKAL (Öğr.İ. Kültür Ü.),
									Sıddık GÜVENDİ - (Mimar K.T.Ü.) Ekip Temsilcisi
Oya ESKİN GÜVENDİ- (Mimar K.T.Ü)
Barış DEMİR - (Mimar Esk. Osmangazi Ü.)
Mesut YEŞİLTEPE - (Şehir Plancısı O.D.T.Ü.)
Eda EKİM YILMAZ - (Peyzaj Mimarı İ.T.Ü.)
Yardımcılar
Ebru Elif AYDIN - (Mimar/ İnş. Müh. İ.T.Ü.), Egehan SAVGI - (Mimar Y.T.Ü.), Beyza PORTAKAL (Öğr.İ. Kültür Ü.),
| Yarışmayı düzenleyen idare | Akhisar Belediyesi | 
| Yarışmanın düzenlendiği yer | Manisa | 
| Yarışmanın tipi | Kentsel Tasarım, Meydan | 
| Yarışmanın türü | Fikir Projesi Yarışması | 
| Yarışmanın şekli | Ulusal | 
| Yarışmanın yöntemi | Tek aşamalı | 
| Yarışmanın yönetmeliği | Kamu İhale Kanunu | 


 
								 
								 
								 
								 
								 
								